• <li id="ssss0"></li>
    <li id="ssss0"></li>
    <tt id="ssss0"></tt>
    <li id="ssss0"></li>
  • <li id="ssss0"></li>
    24小時電話
    18980800355

    當前位置 :主頁 / 工程案例 / 廠房凈化 / 正文

    江門客戶恒溫恒濕空調安裝設計圖

    華銳凈化 / 2021-03-21 08:43:39 / 閱讀
    江門客戶恒溫恒濕空調安裝設計圖江門客戶恒溫恒濕空調安裝設計圖
    最近一個月我們為江門這邊的客戶做的項目比較多,同時也有不少江門的朋友在問我們一些技術問題,協助他們解決一些技術難題。所以近期我們針對該情況在網站上盡可能發布一些針對江門客戶提出的相關問題的技術文檔。今天我們主要給大家分下一下江門客戶恒溫恒濕空調安裝設計圖,因為前面我們已經講述了一些關于恒溫恒濕空調安裝方面文字性的東西比較多,但是大家反饋沒有相關的圖片,圖紙或者說設計圖什么的,不是很形象,大家需要干貨。下面我們就給大家直接出干貨了:

    恒溫恒濕空調適用范圍


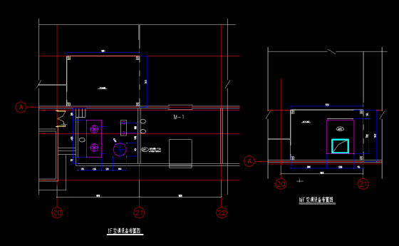
    恒溫恒濕空調設計圖紙

     

    恒溫恒濕空調平面布置圖

    恒溫恒濕空調通風布置

    恒溫恒濕空調通風管道示意圖

    看了以上恒溫恒濕空調安裝設計圖紙后,不僅僅是解決了江門區域朋友們的問題,同時其他地方的朋友看到了本文也是一樣有幫助的,我們做的恒溫恒濕工程都是需要用到恒溫恒濕空調的,比如精密車間,酒窖,檔案室,博物館和實驗室等等工程。這些工程,看起來名字完全不同,千奇百怪,但只要大家注意到一個核心的問題就很好理解了。只要這個工程需要控制兩個因素,第一恒溫,第二恒濕,那就必須用到恒溫恒濕空調,或者也叫做恒溫恒濕機。通過利用恒溫恒濕空調這個核心設備,在搭配其他系統工程一起來控制溫度和濕度,所以你們的項目是不是需要恒溫恒濕空調,大家知道了嗎?

  • <li id="ssss0"></li>
    <li id="ssss0"></li>
    <tt id="ssss0"></tt>
    <li id="ssss0"></li>
  • <li id="ssss0"></li>
    欧美久久久精品 会泽县| 淮安市| 墨竹工卡县| 梓潼县| 高邮市| 阿拉善右旗| 江西省| 平江县| 开化县| 鄄城县| 东乡| 历史| 盱眙县| 北川| 双牌县| 德清县| 油尖旺区| 封开县| 共和县| 常山县| 措美县| 平乡县| 临泉县| 额尔古纳市| 舞钢市| 囊谦县| 闵行区| 馆陶县| 开鲁县| 哈尔滨市| 南通市| 深圳市| 凌云县| 道孚县| 芦山县| 陇西县| 久治县| 体育| 五台县| 苗栗市| 易门县| http://444 http://444 http://444
    x
    手機
    電話
    微信
    QQ