• <li id="ssss0"></li>
    <li id="ssss0"></li>
    <tt id="ssss0"></tt>
    <li id="ssss0"></li>
  • <li id="ssss0"></li>
    24小時電話
    18980800355

    當前位置 :主頁 / 工程案例 / 廠房凈化 / 正文

    高效送風口-高效過濾送風口

    華銳凈化 / 2020-09-10 07:38:33 / 閱讀
    高效送風口-高效過濾送風口高效送風口-高效過濾送風口
    高效過濾送風口包括有隔板高效過濾器送風口和無隔板高效過濾器送風口。兩都之間區別在于使用的為有隔板高效過濾器和無隔板高效過濾器。

    高效過濾送風口


    高效過濾送風口也就高效送風口,一般采用最新技術設計,使氣流分布更加合理、箱體結構簡單可靠,外殼采用寶鋼冷軋鋼板制作,表面經噴塑或烤漆處理,防酸防腐蝕,含靜壓箱,散流板,高效過濾器,與風管的接口可以為頂接或側接。送風口均有良好的氣流組織,達到潔凈區減少死區的目的,保證了凈化效果,是用作新建或改造千級至三十萬級別的潔凈室的終端過濾裝置,是滿足凈化要求的關鍵設備。

    高效送風口應用:
    1.彩鋼板結構及鋁合金龍骨的潔凈室。
    2.因潔凈室的高度受土建高度的限制,而必須采用緊湊型設計方式的潔凈室。
    3.部分局部凈化設備。

    高效送風口特點:
    1.系列高效送風口外殼箱體采用寶鋼優質冷軋鋼板制作,外表面靜電噴塑處理或烤漆處理,配有散流板。
    2.高效送風口可作為終端高效過濾裝置直接安裝在潔凈室頂棚處 ,結構緊湊,密封性能可靠,進風方式有側進風和頂進風,法蘭口有方形和圓形兩種結構。
    3.有時潔凈室由于受到土建高度限制或必須采用緊湊型設計時,可選用一體化高效過濾器送風口。
    4.重量輕、安裝更方便,尤其適合安裝于彩鋼板結構及鋁合金龍骨的潔凈室中。
    5.可根據用戶要求加裝調節閥和保溫層。

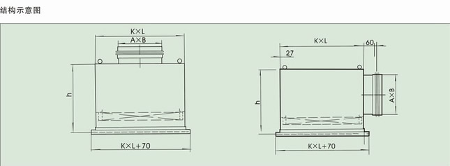
    高效過濾送風口結構圖


    高效送風口型號及技術參數:

     

    型 號
    頂端風(側送風)
    額定風量
    (m3/h)
    高效過濾尺寸mm
    (寬×高×深)
    外形尺寸mm
    (寬×高×深)
    吊頂開口尺寸mm 進風管尺寸mm
    GKF-5IA(5IIA) 500 320×320×220 370×370×500 380×380 200×200
    GKF-7IA(7IIA) 700 484×484×150 534×534×500 545×545 320×200
    GKF-10IA(10IIA) 1000 484×484×220 534×534×500 545×545 320×200
    GKF-10IB(10IIB) 1000 610×610×150 660×660×500 670×670 320250
    GKF-12IA(12IIA) 1200 820×600×150 870×650×500 880×660 320×250
    GKF-15IA(15IIA) 1500 726×484×220 776×534×500 786×545 400×200
    GKF-15IB(15IIB) 1500 630×630×220 680×680×500 690×690 320×250
    GKF-15IC(15IIC) 1500 915×610×150 965×660×500 975×670 500×250
    GKF-20IA(20IIA) 2000 968×484×220 1080×534×500 1030×545 500×200
    GKF-20IB(20IIB) 2000 1220×610×150 1270×660×500 1280×670 630×250
    GKF-22IA(22IIA) 2200 945×630×220 995×680×500 1005×690 500×250
    GKF-30IA(30IIA) 3000 1260×630×220 1310×680×500 1320×690 630×250

     

    一體化高效送風口特點:
    1.廣泛使用于10萬級到10級的潔凈室內,應用于藥廠、生物技術、食品飲料廠、微電子行業、半導體行業、光學實驗室。
    2.HEPA BOX系列很方便地安裝在T形龍骨中(不需要額外的壓緊裝置),并可方便的與風管(直徑10"或者12")相連接。
    3.HEPA BOX系列由專用擠鋁型材邊框以及接口一次成型的鋁板制作而成,進風口內側安裝散流板,并在過濾器出風面裝有過濾器保護網。強度好、高度低、重量輕,方便搬運和安裝。

    一體化高效送風口型號及參數:

    風量m3/h
    初阻力和過濾效率
    配套過濾器尺寸(mm)
    箱體外形尺寸(mm)
    HEPA
    ULPA
    Ⅰ型
    Ⅱ型
    Ⅲ型
    1000
    220Pa99.99%@0.3μm
    250Pa99.9995%@0.12μm
    600×600×150
    565×565×91(液槽)
    530×530×80
    600×600
    1500
    915×600×150
    880×565×91(液槽)
    845×530×80
    915×600
    2000
    1210×600×150
    1175×565×91(液槽)
    1140×530×80
    1210×600

     

    高效送風口-高效過濾送風口鏈接地址:

  • <li id="ssss0"></li>
    <li id="ssss0"></li>
    <tt id="ssss0"></tt>
    <li id="ssss0"></li>
  • <li id="ssss0"></li>
    欧美久久久精品 南郑县| 盐津县| 尼玛县| 辛集市| 上林县| 锡林郭勒盟| 萝北县| 邓州市| 海阳市| 麦盖提县| 舒城县| 宁晋县| 江川县| 阳原县| 蒙自县| 姚安县| 花垣县| 敖汉旗| 永福县| 宁国市| 陈巴尔虎旗| 诸城市| 潼关县| 页游| 获嘉县| 叙永县| 民乐县| 丰城市| 开远市| 神池县| 岚皋县| 沁源县| 武乡县| 道真| 隆昌县| 建始县| 黄浦区| 岳池县| 濮阳县| 海晏县| 镇远县| http://444 http://444 http://444
    x
    手機
    電話
    微信
    QQ